Brighton Colorado Recreation Center Homepage
Search

Improvement Project

Project Overview

The Recreation Center is undergoing several changes in the coming months. The improvement project includes resurfacing floors, a new slide in the pool and expansions to the building. Although these are not all the modifications coming to the Brighton Recreation Center, many of these changes will allow it to better serve the community. These improvements are expected to create a safer environment for patrons, add functionality to the rec center and allow for more people to enjoy the establishment. 

Expansion Project: (Updated 02/25/2026)

The Brighton Recreation Center has completed Phase 2 of our expansion project, and major updates have been accomplished, including:

  • New fitness equipment installed in the downstairs weightroom and fitness studio.
  • New paint in north-west hallway, lobby and gymnasium.

Our Annual Shutdown period will occur April 5 through April 26. This will allow us to complete phase 3 – the final phase – which will feature the brand-new Auxiliary Gym, new furniture, interior paint and expanded indoor track.

The City of Brighton appreciates the community’s patience and support during this important phase of improvement. These upgrades and expansions will enhance the Recreation Center experience for years to come.

image of expansion progress at rec center


Here’s a sneak peek at what’s coming:

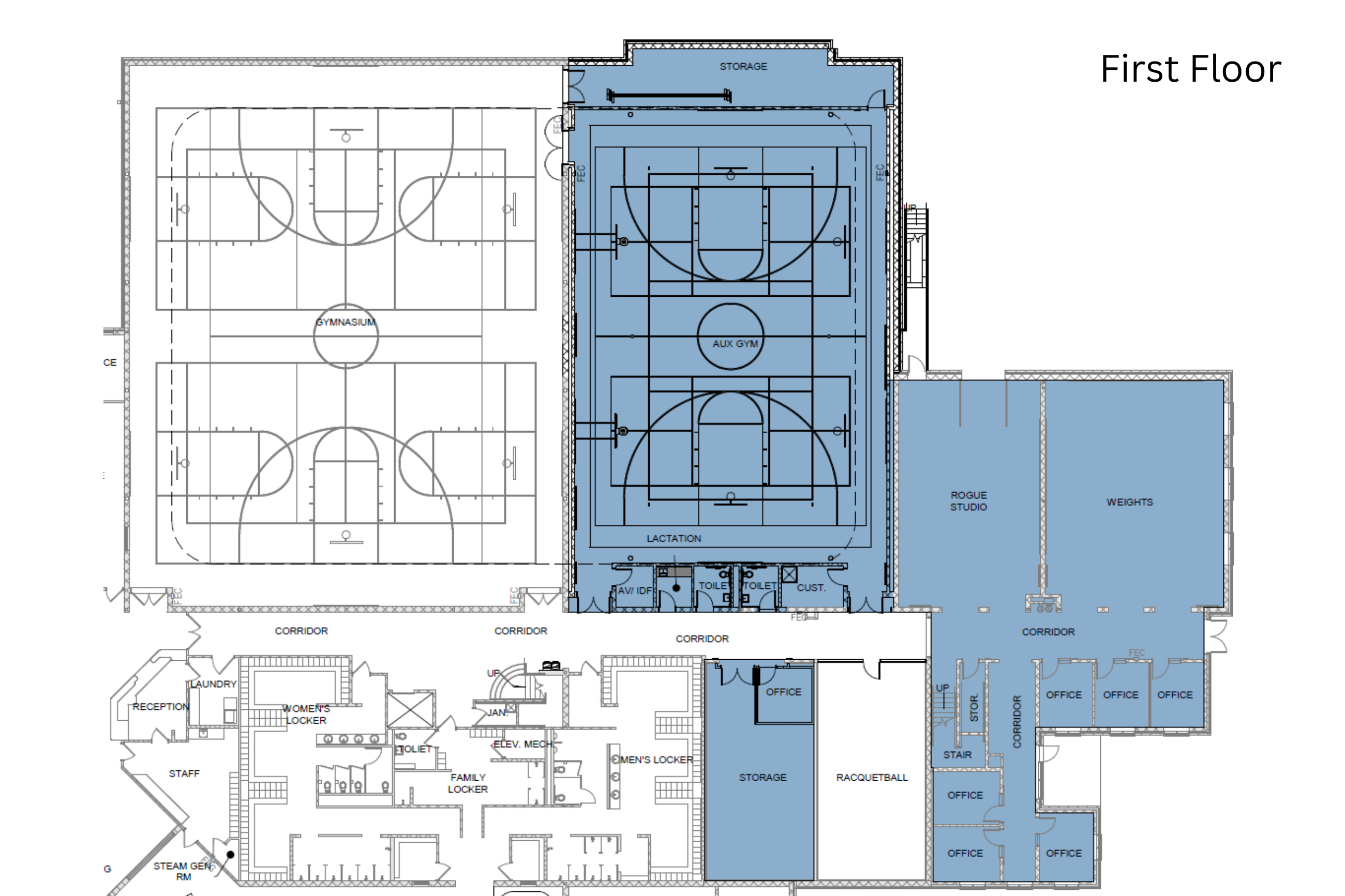
  • New Gymnasium: We’re adding a brand-new gymnasium to accommodate all your sports and fitness needs. Whether you’re shooting hoops, pickling your opponent or hosting community programming and events, our expanded gym will have you covered.
  • An Extended Indoor Track: Run or walk your way into fitness with our expanded track. Featuring less twists and turns, our new and improved track will encircle both gymnasiums allowing for longer straightaways.
  • Enhanced Weight Room: Get ready for a larger, upgraded weight room packed with state-of-the-art equipment to help you achieve your fitness goals.
  • Outdoor Fitness Center: Embrace the great outdoors with our new outdoor fitness center, offering fresh air and new workout opportunities.
  • Cycling Studio: Calling all cycling enthusiasts! Our new cycling studio will feature top-notch bikes and a dynamic environment for your spinning sessions.
  • Additional Work Space: As Brighton Recreation continues to grow, we’re also expanding our work space to ensure our team has the resources they need to keep delivering excellent services.First floor expansion plan. Call 3036552200 for more information
decorative image

Completed Improvements

  • Steam Room - door replacement
  • Gymnasium - floor resurfaced
  • Raquetball - floor resurfaced
  • Community Room - floor resurfaced
  • Fitness Studio - floor resurfaced 
  • Waterslide - newly replaced
  • Carpet - newly installed on west side of facility
  • HVAC Unit - newly installed
  • Underground Plumbing - newly expanded
  • Fire Alarm System - newly upgraded
  • New weightroom is open with new equipment
  • New Functional fitness studio is open
  • New Cycling Studio is open
  • Sections of the building have been repainted
REC-reating a bigger, better Brighton.


Patron Impacts (Updated 02/26/2026) 

  • Inside the building, partitions have been installed to separate areas undergoing demolition and construction.
  • The indoor track is partially closed, - only half of the track's lap is operable for walking or running.
  • The Brighton Recreation Center will be closed April 5 through April 26 to allow construction completion of the expansion project and prepare the facility for its official grand re-opening.

Anticipated Disruptions

  • Demolition
  • During our facility closure, patrons are encouraged to use the Fort Lupton Recreation Department. Entry to the center will be free to any of our members with an annual or monthly membership to the Brighton Recreation Center.


For any questions or more information, reach out to Carleen Watts,
Assistant Director of Recreation Services at 303-655-2206.  



Project Schedule

Phase 1 (February 26 through 5 months): 

  • Beginning of Project: February 26: Closed areas include racquetball court, upstairs weight machines area, and walking track -closed for walking/running (equipment moved onto track)
  • Beginning of March: Relocated areas include Rogue Studio (to room 101) and upstairs weight room equipment (to walking track on 02/26).
  • March 24 through March 28: The relocation of the second-floor egress is expected to take place
  • May 17: Full facility closure. The center will eliminate the need for its usual annual maintenance closure in September.

Phase 2 (6 months through end of October):

  • Cycling studio to be completed for use
  • Racquetball court to re-open to patrons
  • New downstairs weight room to be open to patrons
  • New Rogue studio to be open to patrons
  • New Office Space available for staff

Phase 3 (December through end of April):

  • Auxiliary gym to be completed for use
  • Extended walking track to be completed for use
  • Outdoor fitness space to be completed for use


Milestones of phase 1

  • 2nd floor cycling studio is installed
  • New Fire Alarm system
  • New Utility relocation
  • New HVAC unit installed
  • New carpet throughout west wing
  • New upstairs fitness equipment

Milestones of phase 2

  • State of the art cycling studio is open for use
  • new office space completed
  • New Fire Alarm system installed
  • New Utility relocation 
  • New HVAC unit installed
  • New paint & carpet throughout west wing
  • new functional fitness studio is open for use
  • new weightroom is open for use
  • new fitness equipment installed in weightroom



  1. Brighton Colorado Homepage

Contact Us

  1. 500 S 4th Avenue

  2. Brighton, CO 80601

  3. Phone: 303-655-2000

  4. Hours: 
    Monday - Thursday: 8 a.m. - 5 p.m.
    Friday: 8 a.m. - Noon

Government Websites by CivicPlus®
Arrow Left Arrow Right
Slideshow Left Arrow Slideshow Right Arrow